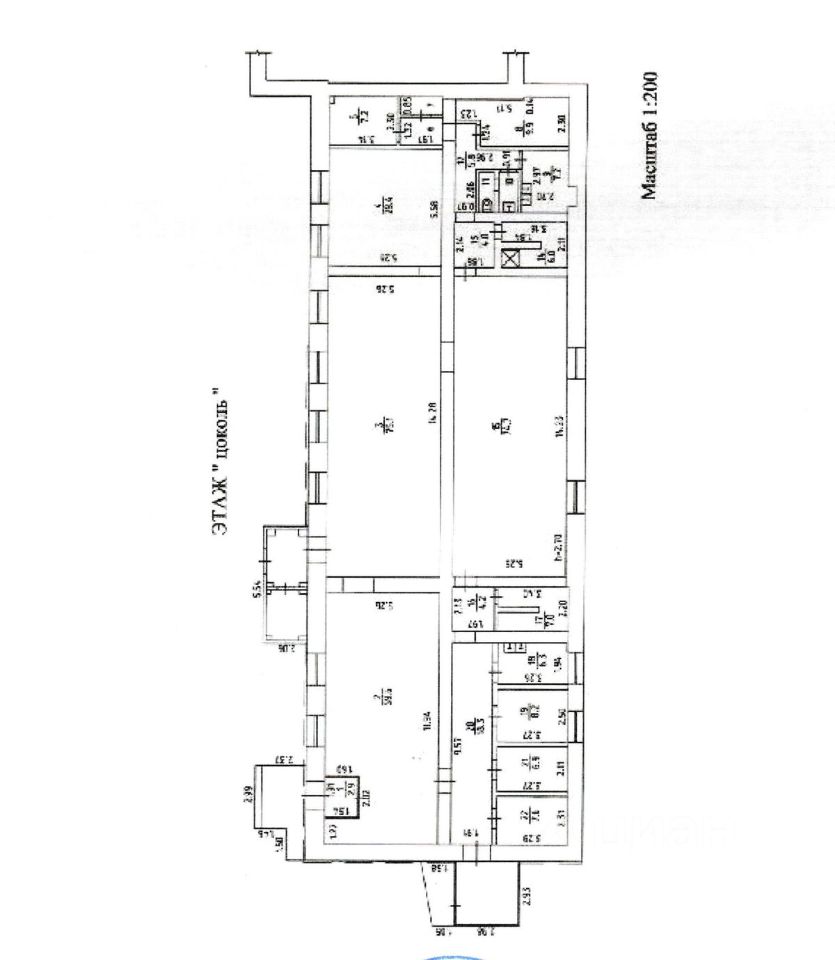
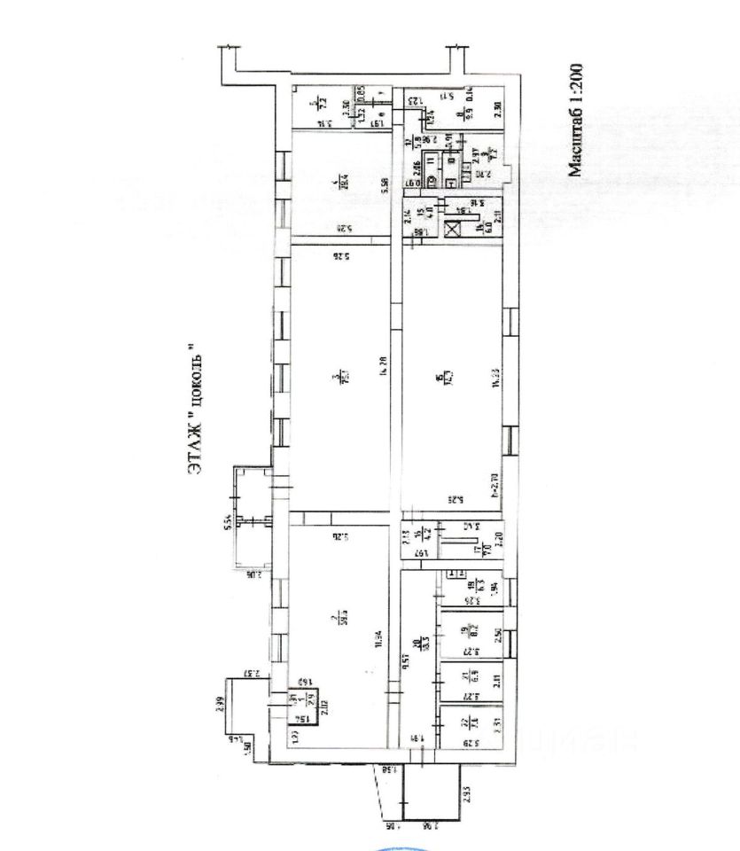
Продам 347,3 кв.м. г. Ижевск, ул. Тверская, д.42 под магазин, офис, услуги, кафе или любой другой вид деятельности. Помещение находится в густонаселенном спальном районе г. Ижевска, высокий цокольный этаж жилого дома, с окнами, 2 входа, зона погрузки выгрузки. Отличный пешеходный и транспортный трафик, рядом находятся магазины Пятерочка, КБ, аптеки, остановки общественного транспорта. 4 просторных торговых зала, помещения для персонала, подсобные, складские помещения, сан.узлы. Круглосуточный доступ, парковка, охрана.