Если цена в объявлении изменится, мы сразу сообщим вам об этом на электронную почту.
Нажимая «Подписаться», вы соглашаетесь с правилами.
продам 2-к, им Котовского7 479 800 ₽
24 дек
Дата публикации объявления
Обн. сегодня
Дата обновления объявления
Спецпредложение
Турбо x8
125 500 ₽/м²
Чистая продажа
Термин "Чистая продажа" означает, что в квартире никто не прописан или
есть куда выписаться и вывезти вещи. Это лучший вариант для покупателя.
Вероятность срыва сделки минимальна.
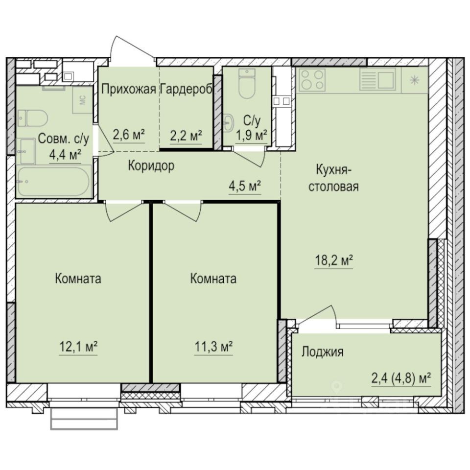
Квартира
Общая площадь59,6 м2
Тип собственностидоговор долевого участия
Дом
Срок сдачи3 кв. 2028 г.
Этаж2 из 17
Материал домакирпич - монолит
Продаётся 2-комнатная квартира в строящемся доме (Дом 1), срок сдачи: III-кв. 2028, общей площадью 59.6 кв.м., на 2 этаже.