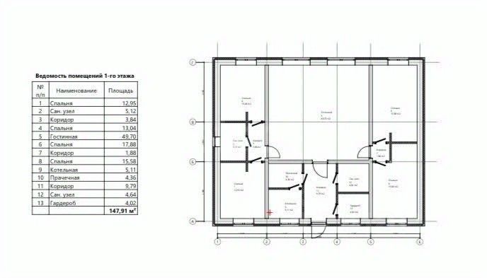
Продается большой дом для комфортной загородной жизни. Просторная кухня-гостиная, 4 спальных комнаты, гардеробная, прачечная, котельная. Новое Завьялово - это комфортабельная застройка с центральным водопроводом и газификацией, центральная дорога - заасфальтирована. В шаговой доступности - пруд и лес для прогулок или катания на лыжах, есть магазин. Дом от юр.лица - подойдет под семейную или сельскую ипотеку.
Код пользователя: 33469
Номер в базе: 10479306

















