Если цена в объявлении изменится, мы сразу сообщим вам об этом на электронную почту.
Нажимая «Подписаться», вы соглашаетесь с правилами.
продам 3-к квартира9 096 500 ₽
12 янв
Дата публикации объявления
Обн. вчера
Дата обновления объявления
1
Количество просмотров (+ просмотры за сегодня)
Спецпредложение
Турбо x8
115 000 ₽/м²
Чистая продажа
Термин "Чистая продажа" означает, что в квартире никто не прописан или
есть куда выписаться и вывезти вещи. Это лучший вариант для покупателя.
Вероятность срыва сделки минимальна.
Квартира
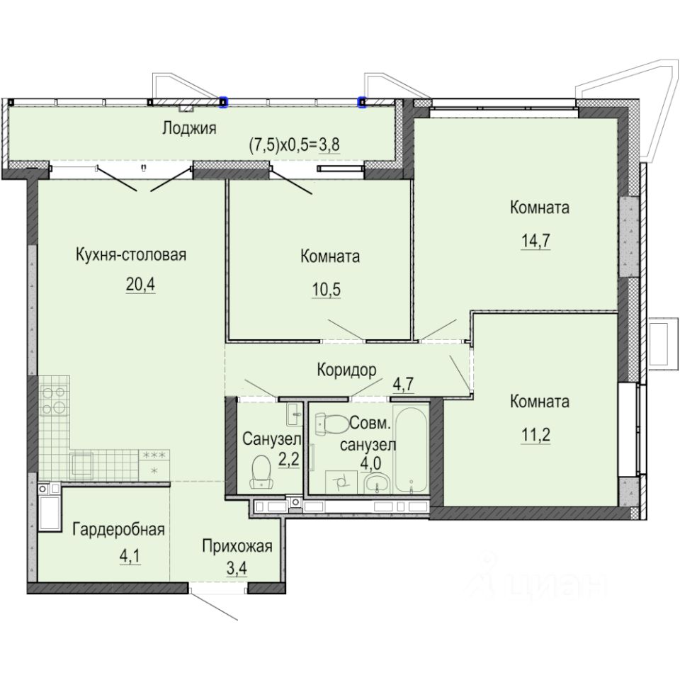
Общая площадь79,1 м2
Тип собственностидоговор долевого участия
Дом
Срок сдачи3 кв. 2026 г.
Этаж15 из 25
Материал домакирпич - монолит
Продаётся 3-комнатная квартира в строящемся доме (Дом 5), срок сдачи: III-кв. 2026, общей площадью 79.1 кв.м., на 15 этаже. Квартира от застройщика КОМОССТРОЙ. Покупка защищена ФЗ 214 с использованием эскроу счетов.
''Умные кварталы А14'' - новый микрорайон комплексной застройки на улице Камбарской, вдоль живописной хвойной аллеи, вблизи гипермаркета Леруа Мерлен. План развития микрорайона включает новую общеобразовательную школу и 2 детских сада на 105 и 200 мест каждый. Рядом расположены: школа 74, детские сады 278 и 280, медцентр Академия Здоровья, гипермаркеты Леруа Мерлен и Лента, спортивный комплекс Байкал.
Продаётся 3-комнатная квартира в строящемся доме (Дом 5), срок сдачи: III-кв. 2026, общей площадью 79.1 кв.м., на 15 этаже. Квартира от застройщика КОМОССТРОЙ. Покупка защищена ФЗ 214 с использованием эскроу счетов.
''Умные кварталы А14'' - новый микрорайон комплексной застройки на улице Камбарской, вдоль живописной хвойной аллеи, вблизи гипермаркета Леруа Мерлен. План развития микрорайона включает новую общеобразовательную школу и 2 детских сада на 105 и 200 мест каждый. Рядом расположены: школа 74, детские сады 278 и 280, медцентр Академия Здоровья, гипермаркеты Леруа Мерлен и Лента, спортивный комплекс Байкал. Помимо школы и двух детских садов на территории микрорайона запроектировано размещение нескольких зон отдыха: ботанической аллеи, множества велодорожек, пикник-парка с беседками и собственным прудом, АRT-пространства с дизайнерской аркой и подсветкой из множества гирлянд.
На первых этажах размещаем просторные колясочные. Вы сможете оставить коляску, велосипед или электросамокат на первом этаже, не поднимая их до своей квартиры, и они не будут занимать место в вашей прихожей или кладовке. В колясочных предусмотрены поддоны для мытья колес велосипедов и детских колясок, а также лап ваших домашних питомцев. Перед входами в подъезды предусмотрены велопарковки. Из окон А14 будут открываться замечательные виды на пойму реки Позимь, лес микрорайона ''Ракетный''.
Квартира: Большинство квартир запроектировано в современных СМАРТ-планировках, с большими кухнями-столовыми и уютными спальнями, где каждый квадратный метр продуман до мелочей! Предусмотрена периметральная поквартирная разводка труб отопления в конструкции пола.
Мы выполняем все капитальные и грязные работы до передачи квартиры собственнику. Стены подготавливаем под оклейку обоями. На полу выполняем полусухую стяжку со звукоизолирующим слоем. Устанавливаем надежные металлические входные двери с тепло- и звукоизоляцией. Выполняем прокладку электросетей, устанавливаем электросчетчики, одну розетку и один выключатель в прихожей.
По проекту, водопровод и канализацию заводим в помещение с установкой заглушек, устанавливаем счётчики воды. Окна выполняем с повышенной площадью остекления, высота подоконников - 0,72 м. Устанавливаем оконные конструкции с повышенными тепло- и звукоизоляционными свойствами. Применяем ПВХ профили с повышенными теплоизоляционными свойствами и двухкамерные стеклопакеты.
По дополнительному соглашению мы можем выполнить в вашей квартире чистовую отделку по нашему типовому проекту.
Умный дом: В микрорайоне ''Умные кварталы А14'' мы реализовали новый, расширенный пакет системы Умный Дом. Это целый перечень оборудования, объединенного в единый сервис, функциями которого можно управлять удалённо, прямо с вашего смартфона