1-к, Леваневского Показать на карте
Ленинский район
Ижевск
ЖК ''Соседи''. Жилой дом 3.DRG GRUPP представляет третий дом жилого комплекса ''Соседи'' — не просто жилье, а стиль жизни для тех, кто ценит уют и комфорт.17-ти этажный жилой комплекс будет расположен на улице Леваневского, в Ленинском районе — в шаговой доступности от развитой инфраструктуры, и вдали от городской суеты.Фасад, который рассказывает историю:Здесь каждая деталь — от фасада до внутреннего двора — говорит о вкусе и вниманию к деталям.''Мокрый фасад'', навесные панели и художественная кирпичная кладка в духе старой Европы идеально продолжат концепцию всего жилого комплекса.Двор, где хочется остаться:Двор жилого комплекса расположен на едином стилобате и соединён со двором второго дома — мы создали единое, закрытое и безопасное пространство для жизни и отдыха.Единая придомовая территория предполагает под собой:Зону отдыха для взрослых — с изысканной перголой и амфитеатром для встреч, книг и вечерних разговоров,Игровую зону для малышей — безопасную и уютную,Спортивную зону для самых активных жителей комплекса, где можно играть в баскетбол или заниматься на уличных тренажерах.Квартиры под ваш ритм жизни:В жилом комплексе предусмотрены разные форматы квартир: от уютных студий для одного до просторных евро-трехкомнатных квартир для больших семей. Каждый найдёт тот самый формат, который подходит именно ему.Холл:Холл третьего дома — это не просто подъезд, это общественное пространство, разработанное в единой концепции со всем жилым комплексом.Это атмосфера тепла, уюта и статуса, где каждая деталь продумана до мелочей. Вы — не просто житель дома. Вы — часть истории ''Соседей''.Функциональность без компромиссов:- Удобные кладовые на первом этаже - разместите в них сезонные вещи, инструменты, инвентарь и бытовую технику,- Наземный крытый паркинг — ваш автомобиль всегда под защитой,- Автономная газовая котельная экономия на коммунальных платежах и горячая вода круглый год,- Видеонаблюдение и ограждённая территория — безопасность как стандарт.Срок сдачи — 4 квартал 2027 года
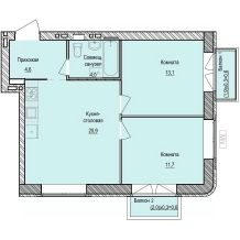
24 м2
6 / 17 этаж
Кирпич - монолит
- Показать контакты
- Добавить в избранное
24 м2
6 / 17 этаж
Кирпич - монолит
3 721 800
152 533 /м2
Новостройка,
IV-2027
IV-2027
