2-к, Джамбула (Джабаева), 83 Показать на карте
Ленинский район
Ижевск
ЖК ''Малиновка'' — современный 17-этажный трёхсекционный жилой комплекс стандарт-класса.Дом расположен в Ленинском районе города — в окружении тишины и спокойствия. А рядом расположен сквер с прудом, где найдётся место для семейных прогулок и отдыха.Проект гармонично соединяет преимущества умиротворённой жизни с городской инфраструктурой. Расположен в самом сердце живого и обустроенного микрорайона ''Малиновая гора'', на пересечении улиц Джамбула и Шабердинского тракта.В основу архитектурной концепции лёг образ маленькой изящной птички — зарянки, ставшей символом тепла, домашнего уюта и утреннего света.Широкий выбор планировок — от компактных и экономичных студий до просторных квартир для большой семьи — ваше идеальное пространство для семейной истории, которая начинается с тёплого и светлого гнёздышка в ЖК Малиновка.
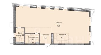
42 м2
2 / 17 этаж
Кирпич - монолит
- Показать контакты
- Добавить в избранное
42 м2
2 / 17 этаж
Кирпич - монолит
4 780 000
111 708 /м2
Новостройка,
I-2028
I-2028
