Дом, днт Новый Лудорвай, 12 Показать на карте
днт Новый Лудорвай
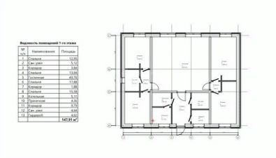
Дом подходит под все виды сделок, а также под программу семейная ипотека и сельская ипотека.Деревня находится рядом с городом, 10 минут езды на машине улицы Азина. Все дороги отсыпаны щебнем, а главные дороги в деревне заасфальтированы.Дом построен профессиональными строителями по проекту с соблюдением всех норм. Материал стен - кирпич, газоблок. Внутри выполнена предчистовая отделка, коммуникации: центральное водоснабжение, выгребная яма, электричество, газ вдоль участка. Отопление: теплый водяной пол - нагрев от электрокотла, зимой включен на прогрев дома. Финишная высота потолка ориентировочно 2,8 м.В деревне есть продуктовые сетевые магазины, пункты выдачи заказов, остановка транспорта.Звоните и записывайтесь на просмотр, задавайте интересующие вас вопросы.Рядом находятся: Тихие Зори, Пирогово, Шудья, Сепыч, Ижевск.
85 м2
1 этаж
Кирпич
- Показать контакты
- Добавить в избранное
85 м2
1 этаж
Кирпич
6 630 000
77 544 /м2
